Mieszkanie na sprzedaż Bielsko-Biała, Górne Przedmieście 54.00 m2

2 pokoje
54.00 m²
9 240,74 zł/m2
parter
KBM-MS-2516
Oblicz ratę kredytu

499 000 zł

Oferta na wyłączność
Video

Szczegóły oferty

Symbol oferty KBM-MS-2516
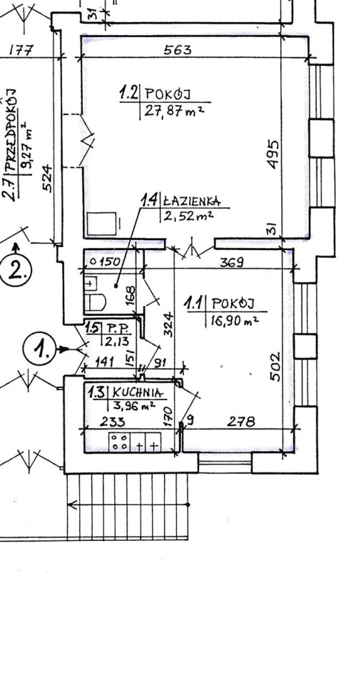
Powierzchnia 54,00 m²
Liczba pokoi 2
Rodzaj budynku kamienica
Technologia budowlana cegła pełna
Standard
Opłaty w czynszu fundusz remontowy, woda
Opłaty wg liczników CO, gaz, prąd
Piętro parter
Liczba pięter w budynku 1
Garaż garaż
Piwnica [m2] 11,50 m²
Stan lokalu do odnowienia
Mies. czynsz admin. 550 PLN
Okna PCV
Instalacje ELEKTRYCZNA, GAZOWA
Balkon brak
Rok budowy 1885
Widok na inne budynki
Gaz jest
Woda tak - ciepła piecyk gazowy
Dojazd ASFALTOWA
Otoczenie działki zabudowane
Ogrzewanie C.O. GAZOWE
Usytuowanie jednostronne
Michał Kubas

Michał Kubas

Specjalista ds. obrotu nieruchomościami

Napisz wiadomość 24 Ofert

Opis nieruchomości

Oferta sprzedaży mieszkania w Bielsku-Białej przy ul. Słowackiego o powierzchni 54 m2 wraz z ogrodem, garażem oraz komórkami lokatorskimi w pałacyku po remoncie. Lokal idealnie nada się również jako biuro. 

Nie przegap! W galerii zdjęć dostępny jest film z tej nieruchomości.

Lokalizacja:

  • lokalizacja w centrum miasta (ul. Słowackiego), pozwala na szybkie dotarcie do każdej jego części (zarówno samochodem, pieszo jak i komunikacją miejską)
  • w pobliżu przystanki komunikacji miejskiej,
  • niedaleko bielski Stary Rynek, teatr, park Słowackiego, restauracje,
Najważniejsze informacje:
  • Powierzchnia lokali: 53,4 m2.
  • Zlokalizowane na parterze.
  • Liczba pokoi: 2
  • Ogród o powierzchni 166 m2 do użytku właścicieli lokalu.
  • Do mieszkania przynależy Garaż, miejsce parkingowe przed garażem, dwie komórki lokatorskie i piwnica
Dodatkowe atuty:
  • Odrestaurowany budynek.
  • Klimatyczne wnętrze z zachowaną stolarką i parkietami.
  • Garaż i miejsce parkingowe
  • Ogród o powierzchni ok. 166 m2.
  • Dwie komórki lokatorskie, piwnica oraz część strychu.
  • Lokalizacja w ścisłym centrum.


Szukasz mieszkania bądź lokalu do prowadzenia działalności, w ścisłym centrum miasta, a jednocześnie nie chcesz obawiać się o brak miejsca parkingowego? Jeśli tak, to ta oferta jest właśnie dla Ciebie! Wyjątkowe dwupokojowe mieszkanie w charakterystycznej kamienicy po remoncie, przy ulicy Słowackiego. 
Prestiżowa lokalizacja w sercu miasta, daje niemal niewyczerpane możliwości korzystania z jego uroków zarówno pieszo (kilka minut spacerem do bielskiego Starego Rynku), jak i samochodem oraz komunikacją miejską, z uwagi na bliskość głównej arterii komunikacyjnej miasta. 

Zapoznaj się ze szczegółami tej, dostępnej tylko w naszym biurze oferty - pośrednik prowadzący, MICHAŁ KUBAS.

Jesteś ciekaw jak działamy? Zapraszamy do odwiedzenia naszych profili w mediach społecznościowych (aktywne ikony w menu strony)!

Lokalizacja nieruchomości

Kalkulatory

Kalkulator kredytowy

Wysokość raty

PLN
%

Kalkulator kosztów

Podatek od czynności cywilno-prawnych

Taksa notarialna
(opłata notarialna)

Wniosek o wpis do WKW

VAT od prowizji
agencji nieruchomości

Vat od taksy notarialnej
(opłaty notarialnej)

Prowizja agencji nieruchomości

Wypisy aktu notarialnego

Razem

Uwaga: mogą wystąpić dodatkowe opłaty za założenie księgi wieczystej oraz ustanowienie hipoteki.

PLN
PLN
PLN
PLN
PLN
PLN
%
PLN

Specjalista ds. obrotu nieruchomościami

Proszę wprowadzić poprawne imię i nazwisko
Proszę wprowadzić poprawny numer telefonu
Proszę wprowadzić poprawny adres e-mail
Proszę zaznaczyć wymagane zgody
Rozwiąż równanie:
22 3
Niepoprawny wynik